

Vòi lavabo cảm ứng TOTO TLE28002A TLE01502A1 TLN01102A (nước lạnh - dùng điện)
Mã SP: TLE28002A/TLE01502A1/TLN01102A
Tình trạng: Còn hàng
Giá tham khảo
8.915.200đ
Thông tin sản phẩm vòi cảm ứng TOTO TLE28002A/TLE01502A1/TLN01102A
- Danh mục: Vòi chậu
- Nguồn nước: Lạnh
- Lưu lượng nước: 2L/phút
- Áp lực nước: 0.05 ~ 0.75 MPa
- Chất liệu: Đồng mạ crom
- Bộ điều khiển vòi cảm ứng kèm dây cấp, van dừng
- Có thể kết hợp với bộ xả TVLF405
Đặc điểm nổi bật vòi rửa tay tự động TLE28002A TLE01502A1 TLN01102ATOTO
Sản phẩm không chạm: Vòi rửa tay tự động TOTO TLE28002A loại bỏ hoàn toàn việc tiếp xúc trực tiếp, giúp ngăn ngừa sự lây lan của vi khuẩn và đảm bảo vệ sinh tối ưu cho người sử dụng. Điều này đặc biệt quan trọng trong các không gian công cộng hoặc những nơi yêu cầu tiêu chuẩn vệ sinh cao.
Cảm biến chính xác: Cảm biến của vòi được đặt bên dưới đầu vòi, cho phép phát hiện người dùng một cách chính xác và nhanh chóng. Vị trí này giúp tránh kích hoạt không mong muốn và đảm bảo vòi chỉ hoạt động khi có người sử dụng, từ đó tiết kiệm nước hiệu quả.
Công nghệ SELF POWER: Được trang bị công nghệ SELF POWER, vòi có khả năng tự tạo ra nguồn điện, giúp tiết kiệm năng lượng và giảm chi phí vận hành (Bộ điều khiển: TLE03502A1). Công nghệ này không chỉ thân thiện với môi trường mà còn đảm bảo vòi hoạt động ổn định ngay cả khi không có nguồn điện bên ngoài.
Công nghệ ECO CAP: Đầu vòi được tích hợp công nghệ ECO CAP, tạo bọt giúp tiết kiệm nước mà vẫn đảm bảo hiệu quả rửa tay. Công nghệ này giúp giảm lượng nước tiêu thụ mà không ảnh hưởng đến trải nghiệm sử dụng, góp phần bảo vệ tài nguyên nước.
Nguồn năng lượng an toàn: Vòi sử dụng nguồn năng lượng điện 220V, đảm bảo an toàn cho người sử dụng. Hệ thống điện được thiết kế để ngăn ngừa rủi ro điện giật và đảm bảo vòi hoạt động ổn định trong thời gian dài.
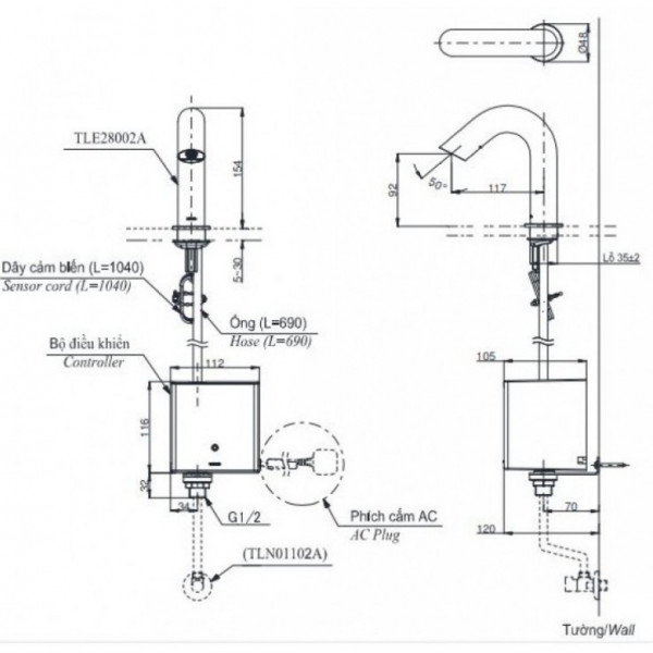
Bản vẽ kích thước vòi TOTO TLE28002A-TLE01502A1-TLN01102A 220V
Sản phẩm liên quan

Bộ âm cho vòi gắn tường Hansgrohe 71577187

Ống thải chữ T Hansgrohe 52053000

Ống thải chữ P Hansgrohe 53002000
