
TOTO
Bộ sen cây nóng lạnh TOTO TBW02002BA TBG02302VA TBW02017A TBW02002BA/TBG02302VA/TBW02017A
Mã SP: TBW02002BA/TBG02302VA/TBW02017A
Tình trạng: Còn hàng
Giá tham khảo
19.589.600đ
Thông tin sản phẩm bộ sen tắm cây TOTO TBW02002BA/TBG02302VA/TBW02017A
Thông tin của bộ sen cây tắm đứng TOTO TBW02002BA/TBG02302VA/TBW02017A:
- Kích thước: 220 mm
- Chất liệu: Đồng mạ NIken-Crom
- Thiết kế: Dáng vuông
- Áp lực nước: 0.05 ~ 1.0 MPa
- Công nghệ mát-xa sen tắm: Warm Spa, Comfort Wave
- Bộ sưu tập: GR
- Chất liệu: Đồng mạ Niken-Chrome
- Áp lực nước khuyến nghị: 0.1 - 0.5 MPa
- Áp lực tối thiểu: 0.05 MPa
- Áp lực tối đa: 1.0 MPa
- Loại: Tay gạt đơn
- Chất liệu: Nhựa mạ Niken-Chrome
- Thiết kế: Dáng hình trụ
- Đường kính: 25.5 mm
- Massage: 1 chế độ (Comfort Wave)
- Áp lực nước: 0.05 - 0.75 MPa
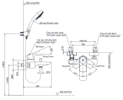
Bản vẽ kỹ thuật bộ vòi sen cây tắm đứng nóng lạnh TOTO TBW02002BA TBG02302VA TBW02017A



Xem thêm