
TOTO
Bồn cầu treo tường điện tử S7 (giấu dây) xả tự động TOTO CW812REA TCF4911EZ WH172AAT TCA464 MB176GH CW812REA#W/TCF4911EZ#NW1/WH172AAT/TCA464/MB176G#WH
Mã SP: CW812REA#W/TCF4911EZ#NW1/WH172AAT/TCA464/MB176G#WH
Tình trạng: Còn hàng
Giá tham khảo
61.108.000đ
Thông Tin Bồn Cầu TOTO CW812REA#W TCF4911EZ#NW1 WH172AAT TCA464 MB176G#WH
Thông tin của bồn cầu treo tường TOTO CW812REA#W/TCF4911EZ#NW1/WH172AAT/TCA464/MB176G#WH:
- Kích thước nắp bàn cầu thông minh TOTO TCF4911EZ :540D x 380W x 330H mm
- Màu sắc: Trắng
- Hệ thống xả: Tornado
- Lượng nước xả: 4.5/3L
- Thiết kế bồn cầu CW812 treo tường: Thân dài, thân kín
- Tâm xả: 220 mm
- Áp lực nước: 0.05 ~ 0.75 MPa
- Nguồn điện: 220V, 50/60Hz
- Lưu ý: Không được kết hợp với van xả trực tiếp
*Sản phẩm CW812REA#W TCF4911EZ#NW1 WH172AAT TCA464 MB176G#WH bao gồm các phần:
- Bồn cầu treo tường CW812REA#W thiết kế sang trọng
- Nắp điện tử S7 TCF4911EZ#NW1 hoà hợp với thiết kế thân cầu rất tinh tế
- TCA464 Van dừng đi kèm với két nước âm tường WH172AAT
- Nắp đậy nút nhấn MB176G#WH
Đặc Điểm Nổi Bật Bồn Cầu Treo Tường TOTO CW812REA#W
- Thiết kế giấu dây hiện đại, tăng tính thẩm mỹ
- Hệ thống xả xoáy Tornado siêu mạnh, siêu êm, tiết kiệm nước
- Nắp đóng/ mở tự động
- Công nghệ nước điện phân khử khuẩn Ewater+ (Phun tráng lòng bàn cầu và vệ sinh vòi rửa)
- Vòi rửa massage đa chức năng, rửa sạch, êm ái
- Chế độ đưa bọt khí vào giọt nước
- Tự vệ sinh vòi rửa trước và sau khi sử dụng
- Sấy khô, khử mùi, sưởi ấm bệ ngồi
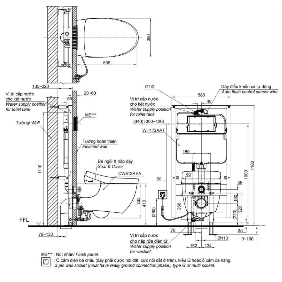
Bản Vẽ Kỹ Thuật Bồn Cầu TOTO CW812REA#W TCF4911EZ#NW1 WH172AAT TCA464 MB176G#WH

Xem thêm